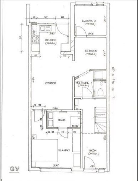
Interessante opbrengsteigendom gelegen in de Oosterveldwijk bestaande uit drie verhuurde appartementen. Het geheel werd in 2012 door een gerenommeerd architect grondig gerenoveerd (nieuwe daken, sanitair, ramen, elektriciteit, individuele centrale verwarmingsinstallatie,...) en vertoeft nog steeds in prima staat. Het glvl heeft een mooi georiënteerde tuin van ca 80 m² en de twee bovenste verdiepingen elk een terras. Alle appartementen zijn tussen de 65 en 70 m² groot en zijn ingedeeld met een ingerichte keuken, doucheruimte, aangename living en mooie slaapkamer. Beneden treffen we 2slk. Individuele meters en kelders. Jaarlijkse huurinkomen (zonder recente indexatie) bedraagt 27.000€.
Uitstekende huurders!
Prima investering op toplocatie!.






















